Krovna oprema
Krovne folije
Zaptivne trake
Zaptivni pojasevi
Rešetke za ventilaciju
Kraupner – sistem šiljaka
Knaher – limovi obloženi plastikom
Kanalizacijski odvodi
Rezervoar za kišnicu
Krovne letve i oprema
Prelazne manžetne
Poklopac okapnice
Opšivka dimnjaka
Krovni prozori
Geotekstil
DEHN – gromobranski sistem
Elementi za ventilaciju slemena
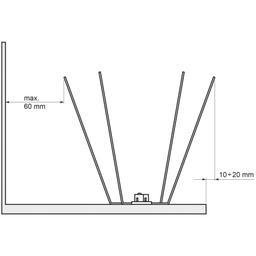
Sistem šiljaka za sprečavanje sletanja ptica
| Materijal | Inox |
| Površinska obrada | Natur |
Opis proizvoda
Jedinstveni visoko efikasan sistem šiljaka za sprečavanje sletanja ptica H123 pogodan je za obradu venaca do 200 mm ili strukturnih elemenata do 130 mm.
Visoka efikasnost je obezbeđena velikim brojem šiljaka (100 kom) po tekućem metru i posebnim položajem šiljaka.
Skraćenica materijala: N
Kod proizvoda: SD-KRAUPNER H-123
Tabela proizvoda
Preračunato po kursu: 1 € = 117,29 din.
Preporučene maloprodajne cene
Ostale komponente

Prodajna mesta
U Evropi smo kod kuće. Zastupljeni smo u 14 zemalja i još uvek rastemo. Gde god da tražite odgovornog partnera za svoj krov, kontaktirajte nas.
Naći prodavca
Da li imate pitanja o našim proizvodima ili uslugama?
Bilten
Pretplatite se na bilten i redovno dobijajte korisne informacije o KJG proizvodima.












