Krovni pokrivači
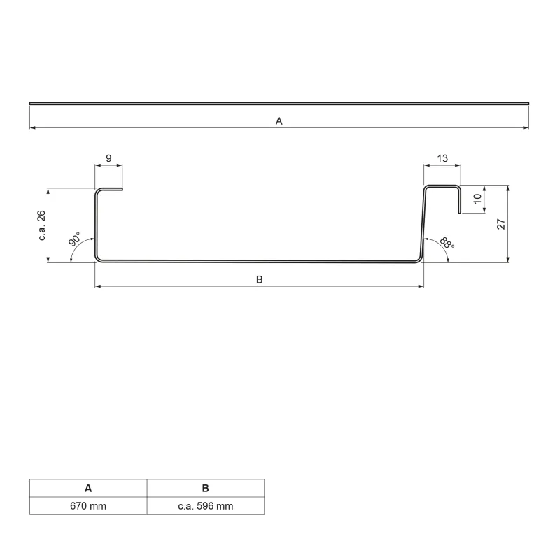
FALZ profil dvostruki stojeći šav
| Materijal | Pocink |
| Površinska obrada | U. S. Steel |
Opis proizvoda
KJG FALZ profil je moderno rešenje krovnog pokrivača sa elegantnim izgledom i dugim vekom trajanja. To je gotova limena traka sa sistemom dvostrukog stojećeg šava, koja se isporučuje već profilisana direktno na gradilište, bez potrebe za dodatnim profilisanjem. To znači bržu montažu, precizno poravnanje i maksimalnu uštedu vremena na mestu izvođenja.
Zahvaljujući preciznoj izradi i kvalitetu materijala, KJG FALZ profil pogodan je za nove objekte i rekonstrukcije krovova, od tradicionalnih do modernih arhitektonskih projekata. Idealan je za male nagibe od ± 3° i izdržava zahtevne klimatske uslove.
Prednosti KJG FALZ profila:
- Isporučuje se već profilisan, spreman za montažu.
- Dobro zaptiven spoj bez vidljivih šrafova.
- Otpornost na vetar, kišu i sneg.
- Elegantni i čisti izgled krova.
- Mala težina pokrivača.
- Široka paleta boja i površinskih obrada.
- Pokrivač bez potrebe za održavanjem i dugog veka trajanja.
Skraćenica materijala: USS
Kod proizvoda: FALZ-DSD
Tabela proizvoda
* proizvodnja po meri
DX51D+Z 200 EN10204
Preračunato po kursu: 1 € = 117,29 din.
Preporučene maloprodajne cene
Ostale komponente

Prodajna mesta
U Evropi smo kod kuće. Zastupljeni smo u 14 zemalja i još uvek rastemo. Gde god da tražite odgovornog partnera za svoj krov, kontaktirajte nas.
Naći prodavca
Da li imate pitanja o našim proizvodima ili uslugama?
Bilten
Pretplatite se na bilten i redovno dobijajte korisne informacije o KJG proizvodima.















